一、項目背景介紹:
公司是中國低壓電器領域的領先企業,現擁有3家自有工廠,2家合資工廠。在中國擁有1500名員工,技術研發團隊80人,其中博士研究生5人,碩士研究生12人,本科生63人。公司于2005年建立起國內同行業中少有的10kA短路分斷實驗室,并先后成為德國萊茵TUV集團和荷蘭DEKRA(KEMA)公司的合作實驗室。
產品通過國內、國際多個體系認證,所研發和生產的低壓電器產品出口全球120多個國家和地區。
二、項目現狀
1. 生產線效率低下,作業人員過多,窩工現象嚴重
2. 物流路線混亂,在制品大量堆積,現場臟亂差
3. 原始簡單的手工作業模式,波動性大,無法保持保量進行生產
4. 工序不平衡,異常多發
5. 整體效率與個別效率不分,生產無序
6. 員工技能單一,無標準作業可遵循,無節拍生產意識
三、規劃實施
01
生產線構建
(1) 需求目標,節拍設定
(2) PQ/PR分析
(3) ECRS法動作分析
(4) 流程分析,工序調整,平衡率改善
(5) 工序作業臺設計
(6) U型產線設計

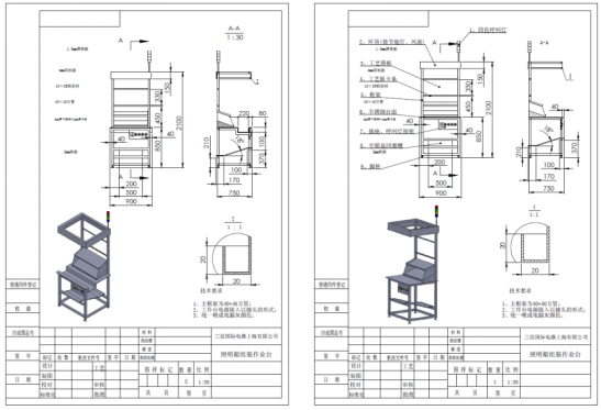
(圖一:作業臺設計)
對作業重新分配、工序平衡后,依據所需實現功能重新設置工作臺的長寬高,設計新的精益工作臺

(圖二: U型產線設計)
參照產品工藝流程,新的作業臺,構建連續流的U型生產線
02
車間布局優化設計
(1) 參照新的U型生產線,及生產節拍,規劃產能需求,確定生產線數量
(2) 按生產需求,確定車間功能區域需求
(3) 確定大物流,確定生產線規劃方向
(4) 車間整體規劃實施

(圖三、車間布局優化設計)
四、方案實施
?

五、實施成果
1. 實際生產使用面積下降48%,WIP下降87%;
2. UPPH由5臺/人時提升為7.3臺/人時,生產效率提升46%;
3. 產品一次合格率平均提升至96%以上;
4. 直接生產成本節省約320萬元/年
?

六、過程改善個案分享
1、鉸鏈壓裝改善

2、自動螺絲機導入

3、銅軸承防漏工裝改善

工程機械集團公司精益管理戰略案例 在項目落地過程中,博革咨詢按照系統診斷、試點推行、樹立標桿、快速復制,IT固化、系統評價、能力內化等七個步驟對集團公司下屬的17個子公司進行推進。 /news/4878.html
某線束工廠裝配車間連續流生產線規劃案例分享 生產線的升級解決了孤島式批量生產的方式,實現了連續流生產模式,在線庫存金額從60萬降為10萬,在制品從50000件降至5000件。車間在建設連續流生產方式時,遵循精益生產思想,通過連續流生產 /news/4876.html
某工程機械工廠裝配車間節拍式流動化生產線設計案例分享 生產線的升級解決了孤島式批量生產的方式,實現了一線流生產模式,庫存金額從50萬降為10萬,在制品從1700件降至200件。車間在建設一個流生產方式時,遵循精益生產思想,還通過按節拍生產、連續 /news/4874.html

.png)
.png)
.png)